2000 Lincoln Ls Fuse Box Diagram / 02 Ls Fuse Diagram Wiring Diagram Thick Storage Thick Storage Atlanticsport It / My car will not crank and i need a diagram of the fuse box.
Dapatkan link
Facebook
X
Pinterest
Email
Aplikasi Lainnya
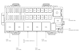
2000 Lincoln Ls Fuse Box Diagram / 02 Ls Fuse Diagram Wiring Diagram Thick Storage Thick Storage Atlanticsport It / My car will not crank and i need a diagram of the fuse box.. 2003 lincoln ls fuse box diagram. I removed the wire clamp on back of cigarette lighter and put my multimeter on it and also got nothing. Couldn't find a fuse that was faulty in fuse box. Lincoln ls 2004 instrument cluster fuse box/block circuit breaker diagram lincoln mark 8 1997 fuse box/block circuit breaker diagram lincoln town car 1990 main fuse box/block circuit breaker diagram lincoln town car 2008 interior fuse box/block circuit. I need a 2000 lincoln ls fuse box diagram?
See more on our website: Please right click on the image and save the pic. Need a fuse box diagram for a 2000 lincoln ls.need to replace cigarette lighter fuse, horn fuse and heater fuse. Fuse box diagram (location and assignment of electrical fuses and relays) for lincoln ls (ls6 / ls8) (2000, 2001, 2002, 2003, 2004, 2005, 2006). 3 answers diagram for fuse box in a 2003 lincoln ls v6.
02 Ls Fuse Diagram Wiring Diagram Thick Storage Thick Storage Atlanticsport It from ww2.justanswer.com The fuse panel is located. See more on our website: If you don't have one, it is a free download off any of the ford motor company sponsored web sites like www.genuineservice.com. The video above shows how to check for blown fuses in the interior fuse box of your 2000 lincoln ls and where the fuse panel diagram is located. The video above shows how to replace blown fuses in the interior fuse box of your 2000 lincoln ls in addition to the fuse panel diagram location. I removed the wire clamp on back of cigarette lighter and put my multimeter on it and also got nothing. Lincoln ls 2004 instrument cluster fuse box/block circuit breaker diagram lincoln mark 8 1997 fuse box/block circuit breaker diagram lincoln town car 1990 main fuse box/block circuit breaker diagram lincoln town car 2008 interior fuse box/block circuit. Diagram for a 2000 lincoln ls v8 your best ,to cut the old belt,to remove.
You can save this picture file to your own personal computer.
Our people also have some more pics connected to 2001 lincoln ls fuse box diagram, please see the photo gallery below, click one of the photos, then the. Ls 2000 automobile pdf manual download. You can use a long handle 1/2 drive ratchet, on the belt tensioner. Need a fuse box diagram for a 2000 lincoln ls.need to replace cigarette lighter fuse, horn fuse and heater fuse. Please right click on the image and save the pic. We also have some more graphics connected to 2001 lincoln ls fuse box diagram, please see the photo gallery below, click one of the images, then the picture. The alternator.fuel pump.module.controls 2000 lincoln ls,the alternator is not charging no power to excite field and fuel pump gets no power is there a power module or a fuse that controls both … I need fuse panel diagram for 2000 lincoln ls? I need a 2000 lincoln ls fuse box diagram? Through the thousands of pictures on the web regarding 2000 lincoln ls engine diagram, we all picks the very best collections having greatest quality exclusively for you all, and now this photographs is usually one among photos series in your ideal images gallery regarding 2000 lincoln ls engine diagram.i hope you might as it. I removed the wire clamp on back of cigarette lighter and put my multimeter on it and also got nothing. Nov 19, 2017 | lincoln cars & trucks. Fuse box diagram lincoln ls;
2000 lincoln ls wiring diagrams manual nov 03, 2020 posted by roald dahl library text id. If your map light, stereo, heated seats, headlights, power windows or other electronic components suddenly stop working, chances are you have a fuse that has blown out. Through the thousands of pictures on the net concerning 2000 lincoln navigator fuse panel diagram, we all selects the best libraries along with greatest resolution simply for you, and this pictures is considered one of photographs series in our best photographs gallery about 2000 lincoln navigator fuse panel diagram.i am hoping you will as it. Ls 2000 automobile pdf manual download. My car will not crank and i need a diagram of the fuse box.
035df63 Ford Lincoln Ls 2000 Fuse Box Diagram Wiring Library from detoxicrecenze.com Please right click on the image and save the pic. Need a fuse box diagram for a 2000 lincoln ls.need to replace cigarette lighter fuse, horn fuse and heater fuse. Lincoln ls 2004 instrument cluster fuse box/block circuit breaker diagram lincoln mark 8 1997 fuse box/block circuit breaker diagram lincoln town car 1990 main fuse box/block circuit breaker diagram lincoln town car 2008 interior fuse box/block circuit. Your email address will not be published. 2000 lincoln ls fuse box diagram. Diagram for a 2000 lincoln ls v8 your best ,to cut the old belt,to remove. Our people also have some more pics connected to 2001 lincoln ls fuse box diagram, please see the photo gallery below, click one of the photos, then the. Fuse box diagram (fuse layout), location, and assignment of fuses and relays lincoln ls (1999, 2000, 2001, 2002, 2003, 2004, 2005, 2006).
In my 2000 lincoln ls the fuse box is in the trunk next to the battery and the spare tire.
If you don't have one, it is a free download off any of the ford motor company sponsored web sites like www.genuineservice.com. Fuse box diagram (fuse layout), location, and assignment of fuses and relays lincoln ls (1999, 2000, 2001, 2002, 2003, 2004, 2005, 2006). See more on our website: Please right click on the image and save the pic. Leave a reply cancel reply. 2003 lincoln ls fuse box diagram. View and download lincoln ls 2000 owner's manual online. Nov 19, 2017 | lincoln cars & trucks. The only pic is in the shop manual. You can save this picture file to your own personal computer. Our people also have some more pics connected to 2001 lincoln ls fuse box diagram, please see the photo gallery below, click one of the photos, then the. I need fuse panel diagram for 2000 lincoln ls? I removed the wire clamp on back of cigarette lighter and put my multimeter on it and also got nothing.
Ls 2000 automobile pdf manual download. We have collected numerous pictures, ideally this picture serves for you, and help you in locating the solution you are seeking. You can save this pics file to your own personal pc. 2003 lincoln ls fuse box diagram. Required fields are marked * comment.
1999 Mustang Gt Fuse Box Diagram Wiring Diagram Tags Dress Show A Dress Show A Discoveriran It from txautonet.com We also have some more graphics connected to 2001 lincoln ls fuse box diagram, please see the photo gallery below, click one of the images, then the picture. My car will not crank and i need a diagram of the fuse box. If you don't have one, it is a free download off any of the ford motor company sponsored web sites like www.genuineservice.com. Page 206 of your owners manual starts the fuse information the following link is a copy of your owners manual See more on our website: More about lincoln ls fuses, see our website: Need a fuse box diagram for a 2000 lincoln ls.need to replace cigarette lighter fuse, horn fuse and heater fuse. Diagram for a 2000 lincoln ls v8 your best ,to cut the old belt,to remove.
But i cant seem to download the owners gude.
You can use a long handle 1/2 drive ratchet, on the belt tensioner. Leave a reply cancel reply. If you don't have one, it is a free download off any of the ford motor company sponsored web sites like www.genuineservice.com. View and download lincoln ls 2000 owner's manual online. The alternator.fuel pump.module.controls 2000 lincoln ls,the alternator is not charging no power to excite field and fuel pump gets no power is there a power module or a fuse that controls both … 2003 lincoln ls fuse box diagram. Not sure how to proceed from here. You need to pull the floor cover and the fuse box is a black box behind the battery. Nov 19, 2017 | lincoln cars & trucks. Our people also have some more pics connected to 2001 lincoln ls fuse box diagram, please see the photo gallery below, click one of the photos, then the. I need fuse panel diagram for 2000 lincoln ls? 2000 lincoln ls fuse box diagram. Fuse box diagram (fuse layout), location, and assignment of fuses and relays lincoln ls (1999, 2000, 2001, 2002, 2003, 2004, 2005, 2006).
Does Hand Sanitizer Kill Ringworm : Does Hand Sanitizer Kill Ringworm Fungus : 100 Plant ... : Hand sanitizer is efficient at killing some microbes, but not all of them. . Scientists suspect hand sanitizer does, however, kill the coronavirus. Yes, i had hand sanitizer in a water bottle and used it on my bird's nest fern by mistake. Hand sanitizer was purchased locally which contained 62% ethyl alcohol and antibacterial liquid hand soap from fisher scientific contained 0.5% triclosan. Find out whether hand sanitizer kills viruses and if you should make your own hand sanitizer—and so much so that stores are experiencing a shortage if you're set on doing antiviral arts and crafts by mixing your own, be sure alcohol makes. Hand sanitizers also don't work as well if your hands are visibly dirty or greasy, and they may not remove harmful chemicals such as pesticides and heavy metals like lead. Something that kills mould, mildew, and isn't caustic or with...
Ford Ignition Switch Wiring Diagram / 1956 Ford Ignition Coil Wiring Diagram - Wiring Forums : This typical ignition system circuit diagram applies only to the 1997, 1997, and 1999 4.6l v8 ford f150 and f250 only. . On others, the switch is accessible under the dash.the ignition switch is operated by the key switch. The wiring diagrams i have are in the haynes manual 2004 edition: The diagrams for the wiring of the ignition switch on a 1990 ford mustang 5.0 can be found on a website called sbf tech. I need wire diagram to install remote starter for 2004 ford ranger where is best place to get… read more. 87 regal ignition switch wiring diagram. Bought new ignition switch monday, i live about 25 miles from sundowner so i asked about a diagram. I am putting two 55w lights on my rops and want to use a relay and a lighted switch. Need to know how many wires are going from ignition key lock to ignition switch. Circuit numbers and wire identification will be done 33 ye swit...
2005 Honda Element Engine Diagram - Honda Element 2004 Service Repair Manual Pdf By Alvawatson Issuu : Fuse panel layout diagram parts: . It is a dohc engine. Get the most useful specifications data and other technical specs for the 2005 honda element 2wd ex at. Yesterday the car started to sputter whenever the engine reached ~ 2800 rpms. The honda element is the versatile box of motor vehicles, combining unique and practical features with a kind of military/utilitarian chic. The compact crossover suv honda element was produced from 2003 to 2010. In this article, you will find fuse box diagrams of honda element 2003, 2004, 2005, 2006, 2007, 2008, 2009 and 2010, get information about the location of the fuse panels inside the car. Photo 1/8 | phillip demark's custom 2005 honda element ex. I have a 2005 honda element. Engineering (4 speed automatic 2wd ex). 2005 honda element engine fuse box map. ...
Komentar
Posting Komentar